My Search Tools:

$394,900 - 254 Savoy Loop, Nolensville

4
Bedrooms
Baths
1,797
SQ. Feet
2025
Year Built

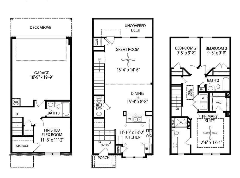
Welcome Home to popular Carothers Farm. Planned community with luxury living in your NEW High Point townhome. Features an open-concept floor plan complete with solid surface on main first fl;crown molding,upgraded quartz counter tops,stainless steel appliances, tile floors in wet areas. Numerous windows allow for natural light, and the expansive master leaves room to spare when paired with a king-sized bed and walk in closet. Storage is ample in your 2 car garage with flex space. Spacious balcony overlooks a picturesque walkable neighborhood; Carothers Farms in Nolensville features include a playground, dog park, organic garden, walking trail & event pavilion. Easy access to I-24 & Tanger Outlets, Nashville is only 20 minutes away. Home is perfect for an owner wanting maintenance-free living or an investor looking to unlock the potential of passive income. HOA includes Hi-Speed Internet! Quick Close.ASK ABOUT SELLER RATE BUY DOWN ON THIS QUICK CLOSE HOME

Essential Information

  • MLS® #:
    3002676
  • Price:
    $394,900
  • Bedrooms:
    4
  • Bathrooms:
    3.50
  • Full Baths:
    3
  • Half Baths:
    1
  • Square Footage:
    1,797
  • Acres:
    0.00
  • Year Built:
    2025
  • Type:
    Residential
  • Sub-Type:
    Townhouse
  • Status:
    Active

Community Information

  • Address:
    254 Savoy Loop
  • Subdivision:
    Carothers Farms
  • City:
    Nolensville
  • County:
    Davidson County, TN
  • State:
    TN
  • Zip Code:
    37135

Amenities

  • Amenities:
    Park, Playground, Underground Utilities, Trail(s)
  • Utilities:
    Electricity Available, Water Available
  • Parking Spaces:
    2
  • # of Garages:
    2
  • Garages:
    Garage Door Opener, Garage Faces Rear

Interior

  • Interior Features:
    Ceiling Fan(s), Extra Closets, Pantry, Walk-In Closet(s), High Speed Internet, Kitchen Island
  • Appliances:
    Dishwasher, Disposal, Microwave, Electric Oven, Electric Range
  • Heating:
    Central, ENERGY STAR Qualified Equipment, Electric, Heat Pump
  • Cooling:
    Central Air, Electric
  • # of Stories:
    3

Exterior

  • Exterior Features:
    Balcony
  • Roof:
    Shingle
  • Construction:
    Hardboard Siding, Brick

School Information

  • Elementary:
    A. Z. Kelley Elementary
  • Middle:
    Thurgood Marshall Middle
  • High:
    Cane Ridge High School

Additional Information

  • Date Listed:
    September 26th, 2025
  • Days on Market:
    12

Listing Details

  • Listing Office:
    Regent Realty

The data relating to real estate for sale on this web site comes in part from the Internet Data Exchange Program of RealTracs Solutions. Real estate listings held by brokerage firms other than [INSERT BROKER NAME] are marked with the Internet Data Exchange Program logo or thumbnail logo and detailed information about them includes the name of the listing brokers.

Disclaimer: All information is believed to be accurate but not guaranteed and should be independently verified. All properties are subject to prior sale, change or withdrawal.

Copyright 2025 RealTracs Solutions.

Listing information last updated on October 9th, 2025 at 8:53am CDT.