My Search Tools:

$400,000 - 815 Trinity Lane W, Nashville

-
Bedrooms
-
Baths
N/A
SQ. Feet
0.6
Acres

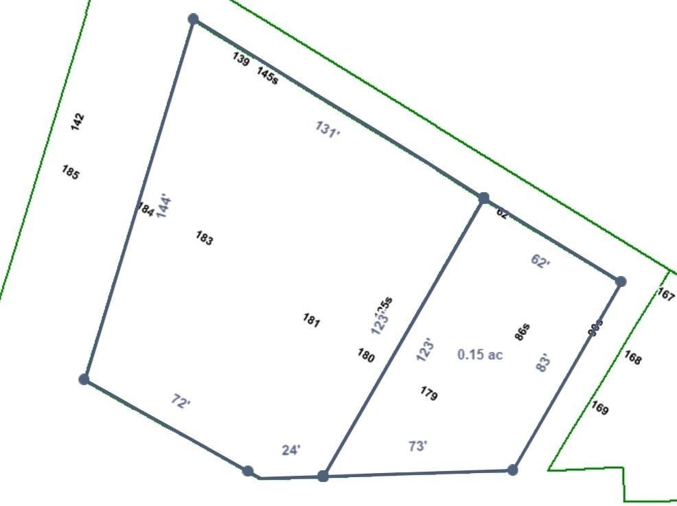
815 W Trinity Lane presents a unique opportunity for development in the Haynes neighborhood, one of the most vibrant and fastest growing areas of Nashville. This offering includes 2 adjacent land parcels, totaling .6 acres (070-08-0-044.00 and 070-08-0-043.00) . With its generous size and R6 zoning this land offering can potentially support 4 duplex structures totaling 8 units, although the possibilities for various development projects. Multi-duplex/townhome construction is next to the property and across the street, which is likely the highest and best use of this land. The property is strategically situated, providing easy access to the city's amenities, entertainment hotspots, corporate development, and is just down the road from the new Titians Stadium, Oracle office development, and Top Golf facility. A mix of conveniences and natural beauty, with a view of the Nashville skyline, make this an ideal blank canvas for those seeking to be a part of Nashville's dynamic growth.

Essential Information

  • MLS® #:
    2696403
  • Price:
    $400,000
  • Bathrooms:
    0.00
  • Acres:
    0.60
  • Type:
    Land
  • Status:
    Active

Community Information

  • Address:
    815 Trinity Lane W
  • Subdivision:
    Haynes Republican
  • City:
    Nashville
  • County:
    Davidson County, TN
  • State:
    TN
  • Zip Code:
    37207

Exterior

  • Lot Description:
    Cleared

School Information

  • Elementary:
    Alex Green Elementary
  • Middle:
    Haynes Middle
  • High:
    Whites Creek High

Additional Information

  • Date Listed:
    August 26th, 2024
  • Days on Market:
    398
  • Zoning:
    R6

Listing Details

  • Listing Office:
    Sims Commercial Real Estate Inc

The data relating to real estate for sale on this web site comes in part from the Internet Data Exchange Program of RealTracs Solutions. Real estate listings held by brokerage firms other than [INSERT BROKER NAME] are marked with the Internet Data Exchange Program logo or thumbnail logo and detailed information about them includes the name of the listing brokers.

Disclaimer: All information is believed to be accurate but not guaranteed and should be independently verified. All properties are subject to prior sale, change or withdrawal.

Copyright 2025 RealTracs Solutions.

Listing information last updated on October 6th, 2025 at 3:39pm CDT.